Two Homes In, A Pattern Is Already Visible
Two homes in. The thing I'm already noticing about Case Study Adapt is how often the architects are treating fire resilience and emotional continuity as the same problem. The Low House — designed by Marmol Radziner for musicians Neli and David Low after they lost their 1920s Palisades home in the January 2025 fire — is the project that crystallized this for me. It is not just a beautiful, technically rigorous rebuild. It is a meditation on how to carry forward the parts of a place that mattered while honestly answering the question the fire forced the family to ask.
Modular as a Design Strategy, Not a Compromise
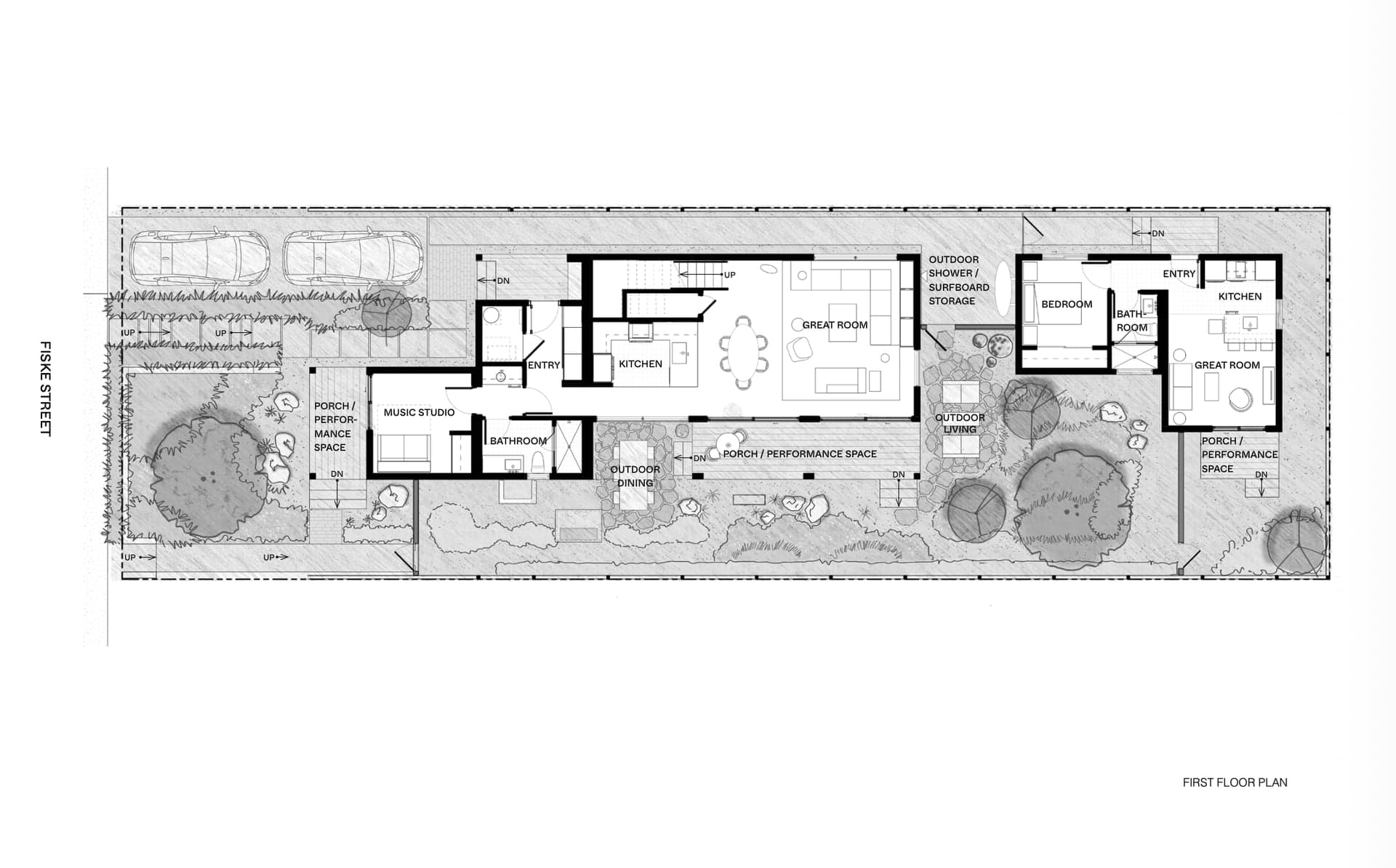
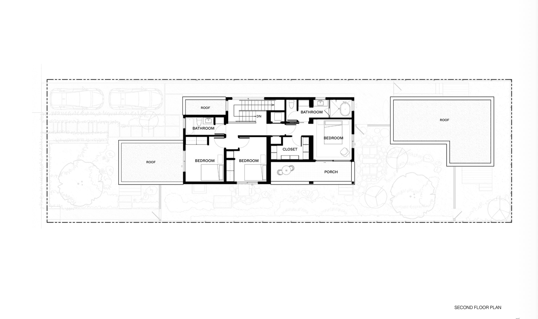
The home reads as a contemporary two-story residence assembled from eleven prefabricated modules, mostly finished off-site, that holds onto the spirit of the original 1920s home while standing up to the realities of the new fire era. Marmol Radziner has been working seriously in California modernism for decades — and they have a long-running prefab division that has spent years refining how to deliver real architecture through factory-built modules. That experience shows up in the proportions, the detailing, and the discipline of the assembly. This is not modular as a cost-cutting compromise. This is modular as a design strategy.
The Basics, Done Right
The environmental strategy is rooted in moves that the best California residential architecture has always done well — deep overhangs, sliding glass doors, cross-ventilation that pulls coastal breezes through the plan and reduces how hard the mechanical systems have to work. None of these are novel ideas. All of them require careful execution to actually function the way the diagrams promise. The Low House does the unglamorous work of making the basics perform the way they should, which is honestly the harder thing. When I am reviewing a set of construction documents for one of our own projects, the first thing I look at is whether the passive moves have been resolved well or whether they have been left to the mechanical system to compensate for. The houses that age best are almost always the ones where the architecture is doing the work first.
The Resilience Details Nobody Will Ever Notice
Where the project gets specifically interesting is in the fire detailing. Non-combustible corrugated metal cladding wraps the exterior. Fiber cement soffits and screened vents close off the path of least resistance for embers. A Zone 0 garden replaces vegetation within five feet of the structure with gravel, flagstone, and native oaks. There is no romance about defensible space here. There are just the right material choices made consistently, the way they need to be made if the home is actually going to perform when conditions turn against it. I always tell our clients that the resilience details that matter most are the ones nobody will ever notice. This house is full of them.
Designed to Carry the Family Forward
What lifts the project beyond a competent rebuild are the smaller gestures. Salvaged bricks from the Lows' original home form the entry steps — a quiet, daily reminder that the new home is continuous with the old one rather than a complete replacement of it. A music studio at the front of the home honors the neighborhood concerts the family used to host, and it is designed to convert into a primary suite when aging in place becomes the priority. That is the kind of design conversation I love having with clients on our own projects: how does the home change as your life does? When the answer is built into the original plan, you have a home that keeps working for the family for a long, long time. That is not a feature. That is what good residential architecture is supposed to do.
What Modular Should Actually Be For
Modular construction tends to get treated as a cost story, and Marmol Radziner has clearly used the prefab approach here to streamline construction, reduce waste, and lower the project's environmental footprint. But the more interesting story is what modular makes possible when a serious firm commits to it: precision, repeatability, and the ability to rebuild quickly when an entire neighborhood needs to come back at once. Two homes into the series and the program is already arguing for itself. Read the full Low House project on Case Study Adapt: https://www.casestudyadapt.org/houses-in-development/project-six-sz8wl-d64c9-gb95m.
Frequently Asked Questions
What is the Low House by Marmol Radziner?
The Low House is the second project in the Case Study Adapt series — a two-story modular residence designed by Marmol Radziner for musicians Neli and David Low, rebuilding after their 1920s Palisades home was lost in the January 2025 fire. The home is assembled from eleven prefabricated modules and pairs deep overhangs and cross-ventilation with non-combustible cladding, screened vents, and a Zone 0 defensible-space garden.
What is modular or prefabricated home construction?
Modular construction means building large sections of the home — sometimes entire rooms or wings — in a controlled factory environment, then transporting and assembling them on the foundation. When a serious firm commits to it, the result is precision, repeatability, reduced material waste, and shorter on-site construction time. Marmol Radziner has run a dedicated prefab division for years, which is part of why the Low House reads as architecture rather than a cost-cutting exercise.
What is a Zone 0 defensible-space garden?
Zone 0 is the area within the first five feet of any structure. In a wildfire-resilient design strategy, Zone 0 is kept free of combustible materials — no woody plants, no mulch, no fences that abut the home — and is replaced with gravel, flagstone, native oaks at distance, or other low-flame elements. This is the most consequential five feet on the entire property when it comes to whether a home survives an ember-driven event.
Who are Marmol Radziner?
Marmol Radziner is a Los Angeles–based design and build firm that has been a serious voice in California modernism for decades. They are notable for their integrated design-build practice, their long-running prefab division, and their portfolio of restoration work on midcentury California residences. The Low House is a strong example of the firm's prefab philosophy applied to a contemporary rebuild brief.
Can prefabricated construction work for custom homes in Oregon?
Yes, increasingly. Prefab and panelized construction methods have matured significantly over the last decade and can be appropriate for Pacific Northwest custom homes — especially where weather windows are short, labor markets are tight, or precision is critical. The right answer depends on the site, the design, and the family's priorities, which is exactly the conversation a builder should be having with a client at the very start of the design process.
Our Process
See how we design and build custom homes from concept to completion.
Floor Plans
Browse 15 customizable designs from 1,635 to 5,628 sq ft.
Service Area
We build across Yamhill County, Sherwood, Hillsboro, and wine country.
Ready to Talk About Your Project?
Get expert guidance from Oregon's trusted custom home builder.




