A New Vision of Modern Living
Creekside Homes is proud to announce our entry in the 2026 Street of Dreams — The Park, a striking modern residence located at 16050 Kaylyn Drive in Oregon City, Oregon. This is a home that was designed not just to be lived in, but to be experienced. With strong architectural lines, walls of glass, and sweeping territorial and downtown views, The Park sets a new benchmark for what modern luxury can look like in the Pacific Northwest.
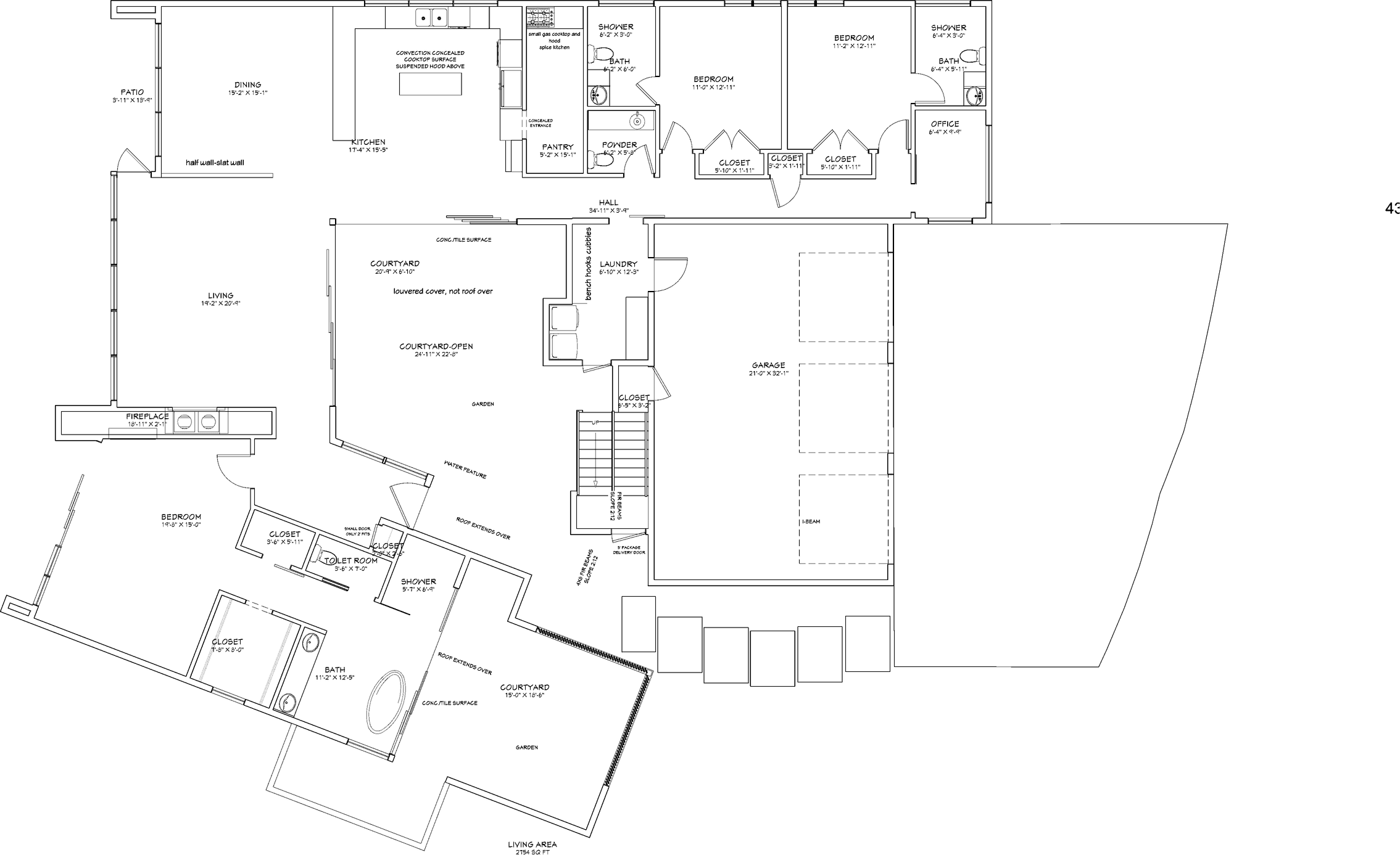
The heart of the home is a massive open-concept living area anchored by a great room with a fireplace. This single-story home features 3 bedrooms, 3.5 bathrooms, and 2,841 square feet of living space with a 3-car attached garage. The kitchen features a large island, walk-in pantry, and all top of the line built-in appliances with quartzite countertops. Adjacent to the kitchen sits a formal dining room, perfectly scaled for hosting. Expansive glass throughout floods every room with natural light and frames the surrounding landscape.
The primary suite is a true retreat. The bedroom opens to an outdoor garden, while the spa-inspired bath offers a jetted tub, walk-in shower, and dual walk-in closets. The two additional bedroom suites include their own private bathrooms and closet organizers, giving family members or guests their own cozy retreats with complete privacy.
What truly sets The Park apart is its rooftop terrace — a feature rarely seen in Oregon residential design. Designed as a true outdoor room, the terrace is open to the sky yet grounded by a refined mix of natural textures and modern detailing. It is equally suited for lively gatherings overlooking the city or peaceful moments of solitary escape. This space alone transforms The Park from a beautiful home into a genuine lifestyle destination.
An interior courtyard adds another layer of indoor-outdoor connection. The home is built to exacting energy standards, with ENERGY STAR qualified heating, central air conditioning, and double-pane storm windows throughout. Accessibility was thoughtfully considered as well — the entire home is single-level with ground-level entry, walk-in showers, and all utilities on the main floor.
Property Details and Availability
The Park is listed at $2,199,000 and is located at 16050 Kaylyn Drive in Oregon City (RMLS# 635707675). The home includes a builder's warranty and specifications may still be customized — contact us for an opportunity to add your personal touches to this extraordinary property.
Collaborators

Richard Potestio
Architect — Potestio Studio
Richard Potestio has mastered the craft of architectural design through a distinguished 40-year career creating innovative, award-winning homes across Oregon. He has specialized in distinctive private residences that are both elegant and enduring — homes thoughtfully designed to reflect the individuality of each client while achieving an impactful architectural presence.

Leslie Minervini
Interior Designer — Minervini Interiors
Leslie Minervini has been creating soulful interiors for 23 years, having been awarded for past Street of Dream projects and multiple IDS honors. Guided by a mission to create truly unique and meaningful environments, Leslie is known for her intuitive ability to translate each client's vision, lifestyle, and aspirations into refined interiors that feel both personal and timeless.

Michelle Ponce
Art Director
Michelle Ponce is a distinguished staging and event visionary with an extensive background in directing elevated productions and installations. With a portfolio spanning high-profile festivals, curated events, commercial productions, and refined residential environments, she brings a sophisticated editorial eye to every project.
Our Process
See how we design and build custom homes from concept to completion.
Floor Plans
Browse 15 customizable designs from 1,635 to 5,628 sq ft.
Service Area
We build across Yamhill County, Sherwood, Hillsboro, and wine country.
Ready to Talk About Your Project?
Get expert guidance from Oregon's trusted custom home builder.




